giving hope and support
to children and families in their time of need Plans and Equipment

EQUIPMENT PROVIDED FOR THE CENTRE

FUNDING RAISED FOR PURCHASE OF EQUIPMENT FOR THE NEW BREATHING LIFE LUNG CENTRE FOR CHILDREN WAS £205,000 (€240,200) AND COMPRISED;

Digital High Speed Imaging System to assess beating frequency of respiratory cilia (£14,500 / €21,000)
Digital High Speed Imaging facility enables the assessment of beat frequency of cilia in respiratory mucosa biopsies. This technologically demanding diagnostic procedure is critical for the diagnosis of the syndrome Primary Ciliary Dyskinesia.

Primary Ciliary Dyskinesia if left undiagnosed and not properly managed, gradually results in severe lung damage and increased mortality. This diagnostic technique does not exist today in Greece or other countries of the Eastern Mediterranean. The indications are that the frequency of this condition is increasing in the population of Cyprus and research in the epidemiology and causation of this syndrome will be facilitated with the help of this equipment. In the last six months 20 suspect patients had already undergone respiratory mucosa biopsy and in 16 the diagnosis of Primary Cilia Dyskinesia was confirmed.
Exhaled Nitric Oxide Analyser (£30,000 / €43,000)
Exhaled bronchial and nasal analyzer is a sensitive biomarker of the airway's inflammation and has proved a useful guide in the diagnosis and treatment of children with asthma, cystic fibrosis and primary cilia dyskinesia. It is also an essential biomarker to be assessed in many studies investigating the causation and treatment of key respiratory diseases.
24 hour pH study system (£8,000 / €9,500)
Up to fifty young infants per year have the need of evaluation for gastroesophageal reflux (return of the stomach contents up into the opening of the windpipe). This disorder can give children choking episodes, food denial and poor growth, or persistent chestiness due to aspiration of stomach contents into their lungs. Every referral lung centre should be adequately equipped to assess this condition that if left untreated may destroy children's lungs.
Digital Paediatric Flexible Bronchoscopy (£40,500 / €47,500)
This provides digital imaging of the inner surface of the infant upper and lower airway.
Over thirty young infants and children every year with severe abnormalities of the voice box and air passages will benefit dramatically by this state of the art powerful diagnostic system with great imaging resolution. Advanced digital video images of the larynx and bronchi examinations can be saved at the Centre in Nicosia and if necessary can be viewed within minutes over the internet by world specialists in leading collaborating centres for consultations on difficult or rare cases.
Sleep Study System (£30,500 / €36,000)
This multi-modular powerful diagnostic system offers 25 channels to record numerous parameters that are important in the assessment of breathing of infants during sleep. About 50 children per year with severe and sometimes life-threatening sleep disorders such as sleep apnoea, hypoventilation syndromes, unexplained choking or "bluish" attacks will be able to have a thorough evaluation of their breathing difficulty and benefit from the early institution of appropriate treatments. This system can also monitor the performance of therapeutic measures and help make adjustments in treatment to maximise efficacy and results.
Bronchial Provocation Testing (£2,700 / €3,200)
This device offers the potential to assess the presence of twitchy air passages in about fifty children per year who have persistent chest symptoms that practicing physicians find are not typical of asthma or other chest disease. This extremely useful technique can help confirm or reject the diagnosis of asthma. This is particularly useful in clinically atypical cases of asthma and is also a must in research projects on the causation of childhood asthma.
Portable spirometer interfaced with a PC (£1,500 / €1,800)
This equipment provides assessment of basic lung function parameters in children & software for storing and analysing measurements

More than 500 children every year that come to the Centre from all over Cyprus with open referrals will be assessed for basic lung function measurements with this equipment. This equipment's practical size and ability to move around in Outpatient Clinics makes it ideal for the everyday routine assessment of children with various lung diseases.
Children Lung Function (£28,400 / €33,900)
Children Lung Function Equipment although sophisticated will enable detailed assessment of lung function in about fifty children per year with severe worrying lung diseases such as cystic fibrosis, bronchiectasis and severe asthma that cannot be evaluated with other means. The knowledge of lung function details in these children will influence decisions on their management and improve ultimate outcome. It will also give the potential for research projects in asthma and chronic lung diseases with bronchiectasis.
Polymerase Chain Reaction (PCR) (£31,000 / €41,300)
The introduction of molecular biology techniques for the detection of atypical bacteria ie Borderella Pertussis, Chlamydia Pneumoniae and Mycoplasma Pneumoniae is necessary for every referral respiratory centre at a national level. These pathogens cause severe respiratory infections in childhood (sometimes life-threatening) and cannot be isolated and identified with standard microbiology techniques (cultures etc). This is the reason that until today these infections cannot be diagnosed and confirmed in Cyprus. This facility will offer great service both for clinical as well research investigations in the behaviour of these pathogens in the Cypriot paediatric population.
Inhaled Nitric Oxide Equipment (£9,600 / €12,800)
Up to 10 newborn babies and several children every year fall gravely ill, and despite all conventional ventilation techniques available on intensive care units, fail to adequately oxygenate. This equipment provides a very powerful special gas to the infant and can reverse total respiratory failure and give hope for life.
IOS with APS (£10,700 / €12,600)
Need a write up for this
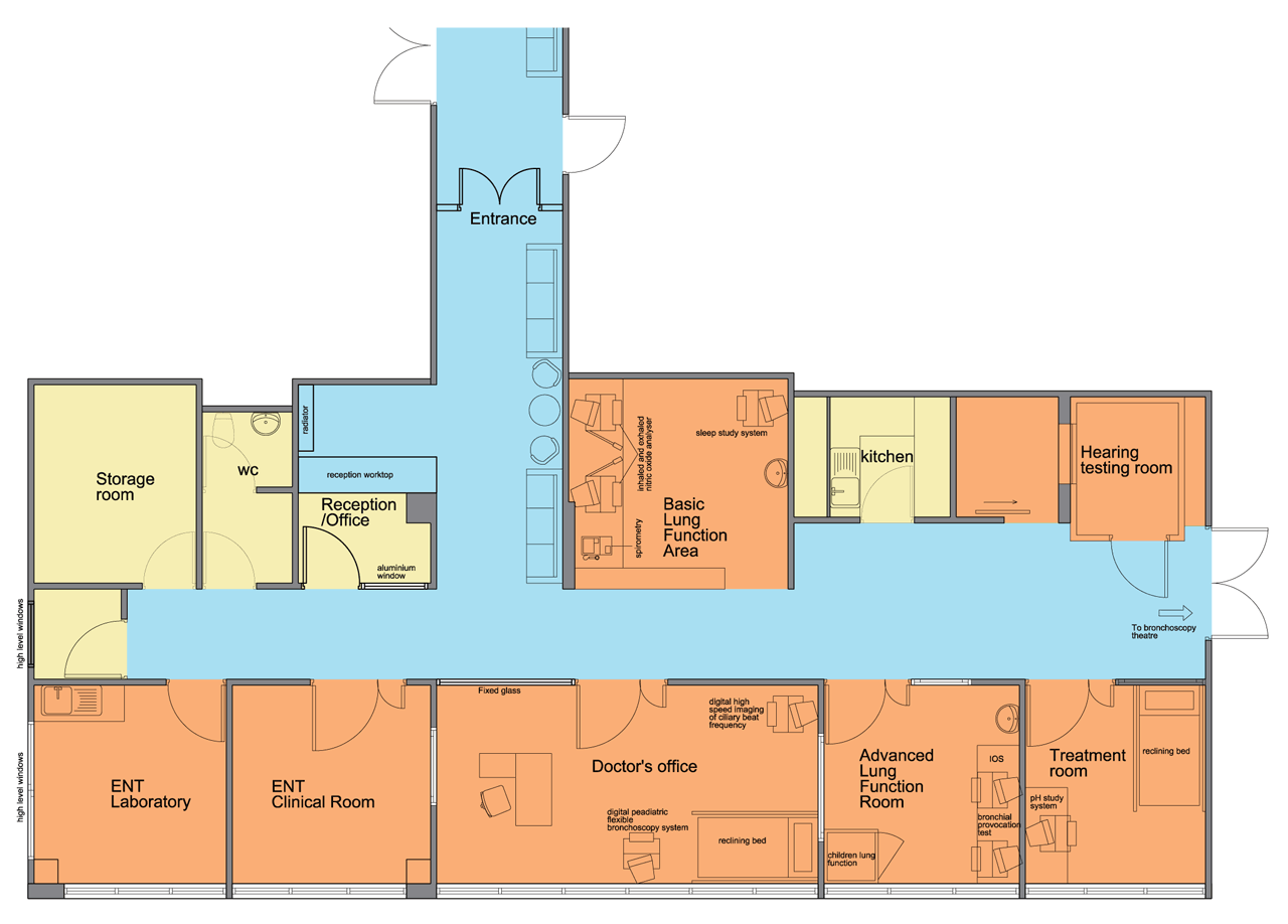
SEE LAYOUT AND FLOOR PLANS